Swinford House, Eynsham

3 Bed | 2 Bath | 1 Reception | Offers in Excess Of £800,000

An exceptional period cottage with almost 3000 sqft set within private grounds, extensive parking and outbuildings with great potential.

Swinford House showcases sophisticated interior design throughout, creating beautifully appointed living spaces that blend style with comfort.

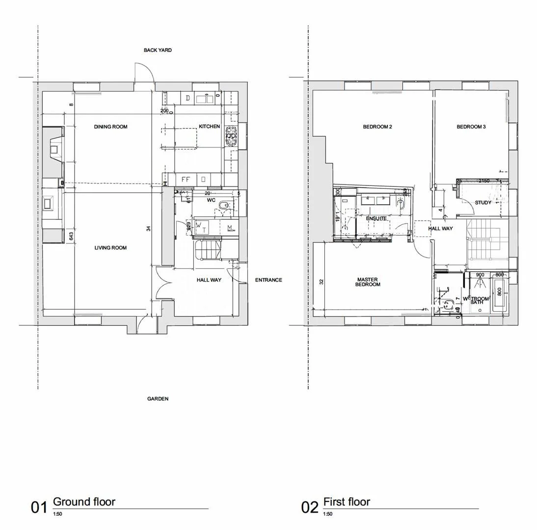
The ground floor welcomes you through an entrance hall with feature staircase and convenient guest cloakroom. The living areas offer a contemporary open-plan layout while carefully preserving the cottage's original charm and character, highlighted by a stunning feature fireplace and effortless flow between rooms.

The first floor accommodates three generous double bedrooms and study. The master suite enjoys delightful garden views and boasts a luxury ensuite shower room finished to the highest standard. A well-appointed family bathroom serves the remaining bedrooms.

Swinford House is embraced by mature private grounds, creating a wonderfully secluded setting. The naturally landscaped gardens provide diverse outdoor spaces including established lawns, entertaining terraces, and kitchen garden. You will also find extensive off-street parking, wraparound garden access, and versatile outbuildings perfect for storage and more subject to planning consents.